◆内外装リフォーム済み美宅◆デザイン住宅◆駐車2台可◆伏見区桃山紅雪町

2,680万円

京都府京都市伏見区桃山紅雪町88-2

京阪宇治線「六地蔵」駅徒歩13分

奈良線「六地蔵」駅徒歩13分

京都地下鉄東西線「六地蔵」駅徒歩13分

価格
2,680万円
間取り
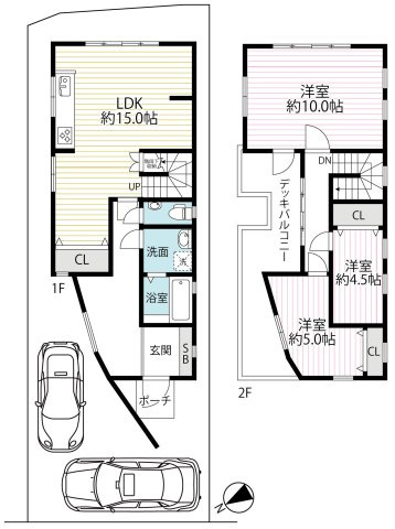
3LDK
土地面積
102.21㎡
所在地
京都府京都市伏見区桃山紅雪町88-2
交通

京阪宇治線六地蔵」駅 徒歩13分

奈良線六地蔵」駅 徒歩13分

京都地下鉄東西線六地蔵」駅 徒歩13分

建物面積
89.83㎡
築年月
2003年2月(築23年)

物件の特徴

  • 室内洗濯機置場

  • TVモニタ付きインターホン

  • 浴室乾燥機

セールスポイント

外構工事・内装リフォーム済みの美宅☆平成15年建築、外観・室内ともにオシャレで個性的なデザイン住宅♪高台に立地し陽当たり・通風・眺望良好◎2階のウッドデッキバルコニーから見える小栗栖・醍醐一体の景色は圧巻!イズミヤ六地蔵店・MOMOテラス・郵便局などが徒歩10分以内に揃う生活至便地◎小学校まで徒歩5分&周辺に児童公園も複数有り、子育て環境良好◎駐車2台可能!前道広々7mでお車の出し入れもらくらく♪

ポイント

桃山東小学校 桃山中学校 伏見区桃山紅雪町 眺望良好 スーパーが近い

担当者のコメント

吉田 祐樹

外構工事・内装リフォーム済みの美宅☆
平成15年建築、外観・室内ともにオシャレで個性的なデザイン住宅です♪
高台に立地し陽当たり・通風・眺望良好◎
2階のウッドデッキバルコニーから見える小栗栖・醍醐一体の景色は圧巻です!
イズミヤ六地蔵店・MOMOテラス・郵便局などが徒歩10分以内に揃う生活至便地◎
小学校まで徒歩5分&周辺に児童公園も複数有り、子育て環境良好です◎
駐車2台可能!
前道広々7mでお車の出し入れもらくらくです♪

基本情報

販売戸数
1戸
総戸数
1戸
間取り / 詳細
3LDK
LDK 15.0帖 1室/洋室 10.0帖 1室/洋室 5.0帖 1室/洋室 4.5帖 1室
向き
北西
建物面積(坪数)
89.83㎡(27.17坪)
土地面積(坪数)
102.21㎡(30.91坪)
建ぺい率 /
容積率
50%/80%
築年月
2003年2月(築23年)
駐車場 / 月額
有(2台) / 0円
土地権利
所有権
土地
(敷金 / 保証金)
- / -
建物構造
木造 / 2階建
傾斜地部分面積
-
路地状敷地
-
私道負担面積
-
セットバック
高圧線下面積
-
施工会社
-
用途地域
第一種低層住居専用
地目 / 地勢
宅地 / 高台
接道状況
一方(北西 7.1m)
国土法届出要否
不要
都市計画
市街化区域
総区画数 /
販売区画数
1区画/1区画
現況
空家
その他
法令上の制限
-
取引態様
売主
引渡し
即時
リフォーム
    2024年11月
    浴室 トイレ ハウスクリーニング
    2024年11月
    駐車スペース拡張工事、人工芝敷き
取引条件の
有効期限
2026年03月22日

設備条件

設備条件
  • 陽当り良好 / リフォーム済 / 眺望良好 / 室内洗濯機置場 / フローリング / バルコニー / 都市ガス / 公営水道 / 公共下水 / 電気有 / 駐車2台可 / ガスコンロ / コンロ2口以上 / システムキッチン / コンロ3口 / 追焚機能浴室 / 浴室乾燥機 / 温水洗浄便座 / 洗髪洗面化粧台 / 浴室1坪以上 / 収納豊富 / TVモニタ付インターホン
設備(その他)
    -

その他

物件番号
90343433
管理コード
H00626
建築確認番号
-
情報更新日
2026年03月08日
次回更新予定日
2026年03月22日
取扱会社
  • 株式会社ハウスプロジェクト
  • 京都府京都市伏見区桃山町遠山69 
  • TEL:0120-3355-39
  • 京都府知事 (4) 第12993号
  • 公益社団法人 全日本不動産協会

    公益社団法人 近畿圏不動産流通機構

    株式会社 日本住宅保証検査機構
備考
■学区:桃山東小学校(350m)・桃山中学校(2.2km)
■2階の全居室・廊下・階段部分は勾配天井で高くなっており、とても開放的です!
■リビング階段で家族のふれあいを重視した間取り◎
■令和6年11月内外装リフォーム済み
外構コンクリート工事(駐車スペース2台分に拡張)
人工芝敷き
浴室・トイレ新調
フローリング張替え
クッションフロア張替え(階段・洗面室・トイレ床)
クロス貼替え(一部除く)
一部建具新調
1階東面・南面の外壁補修工事
間接照明設置(2階)
床レベル調整
ハウスクリーニング
■令和4年3月内外装リフォーム履歴
システムキッチン新調(換気扇は新調、フードカバーは再利用)
3面鏡タイプ洗髪洗面化粧台新調
洗濯用水栓新調
北側ウッドデッキ鋼製手摺り塗装
浴室前の床 下地工事
2階洋室10帖 転落防止アルミ窓手摺り新調
換気扇新調(洗面・トイレ)
コンセントプレート新調
各種補修・調整工事
LDK・2階洋室10帖 板金上張り工事(雨漏りのため)
2階北側バルコニーウッドデッキ新調
波板張替
外構高圧洗浄

周辺施設

  • 桃山東小学校の画像

    小学校

    桃山東小学校

    350m(5分)

  • 伏見桃山西尾郵便局の画像

    郵便局

    伏見桃山西尾郵便局

    550m(7分)

  • イズミヤ六地蔵店の画像

    スーパー

    イズミヤ六地蔵店

    650m(9分)

  • セブンイレブン桃山町和泉店の画像

    コンビニエンスストア

    セブンイレブン桃山町和泉店

    700m(9分)

  • 桃嶺保育園の画像

    保育園

    桃嶺保育園

    800m(10分)

  • MOMOテラスの画像

    ショッピングセンター

    MOMOテラス

    800m(10分)

  • 京都信用金庫南桃山支店の画像

    信用金庫

    京都信用金庫南桃山支店

    1200m(15分)

  • 京都市図書館醍醐図書館の画像

    図書館

    京都市図書館醍醐図書館

    1700m(22分)

  • 桃山中学校の画像

    中学校

    桃山中学校

    2200m(28分)

支払いシミュレーション

月々の支払額
購入希望物件価格
万円
頭金
万円
金利
%
返済額(ボーナス1回分)
万円
返済期間

※ボーナスは自動で年2回分で計算されます。

近隣の物件

  1. ◆京阪「桃山南口」駅徒歩7分◆間取り自由設計◆南東角地◆伏見区桃山町大島

    京都市伏見区桃山町大島

    3LDK (109.30㎡)

    5,080万円

  2. ◆3沿線利用可能◆周辺環境充実◆閑静な住宅街◆伏見区桃山町山ノ下

    京都市伏見区桃山町山ノ下

    4LDK (69.06㎡)

    1,480万円

  3. ◆間取り自由設計◆周辺施設充実◆陽当たり良好◆3沿線利用可◆伏見区桃山町安芸山

    京都市伏見区桃山町安芸山

    3LDK (101.02㎡)

    4,780万円

  4. ◆リビング広々20帖以上の4LDK◆並列駐車2台可能◆伏見区向島庚申町2期

    京都市伏見区向島庚申町

    4LDK (104.96㎡)

    3,498万円

よく見られている物件

  1. 地震に強いRC造●庭スペースあり●全室2面採光で陽当たり良好●亀岡市畑野町千ケ畑高橋

    亀岡市畑野町千ケ畑高橋

    4LDK (103.60㎡)

    700万円

  2. 築後未入居★角地につき陽当たり&通風良好★木の温もりを感じる新築ミニログハウス★京丹波町橋爪渕上

    船井郡京丹波町橋爪渕上

    1DK (36.45㎡)

    1,420万円

  3. 緑豊かな住環境■角地■丁寧にお使いの4SLDK■カーポートは駐車2台可能■亀岡市畑野町千ケ畑高橋

    亀岡市畑野町千ケ畑高橋

    3LDK+S(納戸) (103.30㎡)

    350万円

  4. ◆緑豊かな住環境◆畑や栗の木のある広い約100坪の敷地◆平家建◆駐車スペースあり◆京丹波町中台土橋

    船井郡京丹波町中台土橋

    1R (30.00㎡)

    498万円

◆内外装リフォーム済み美宅◆デザイン住宅◆駐車2台可◆伏見区桃山紅雪町

◆内外装リフォーム済み美宅◆デザイン住宅◆駐車2台可◆伏見区桃山紅雪町

2,680万円

-

3LDK(89.83㎡)

お気軽にお問い合わせください

無料お問い合わせ

株式会社ハウスプロジェクト

0120-3355-39

AM9:00~PM7:30

(休:なし(年末年始を除く))