約130坪の2階建てシャッター付き工場◆即引渡し可能◆南区吉祥院這登中町

1億6,000万円

京都府京都市南区吉祥院這登中町

東海道本線「西大路」駅徒歩17分

価格
1億6,000万円
建物面積
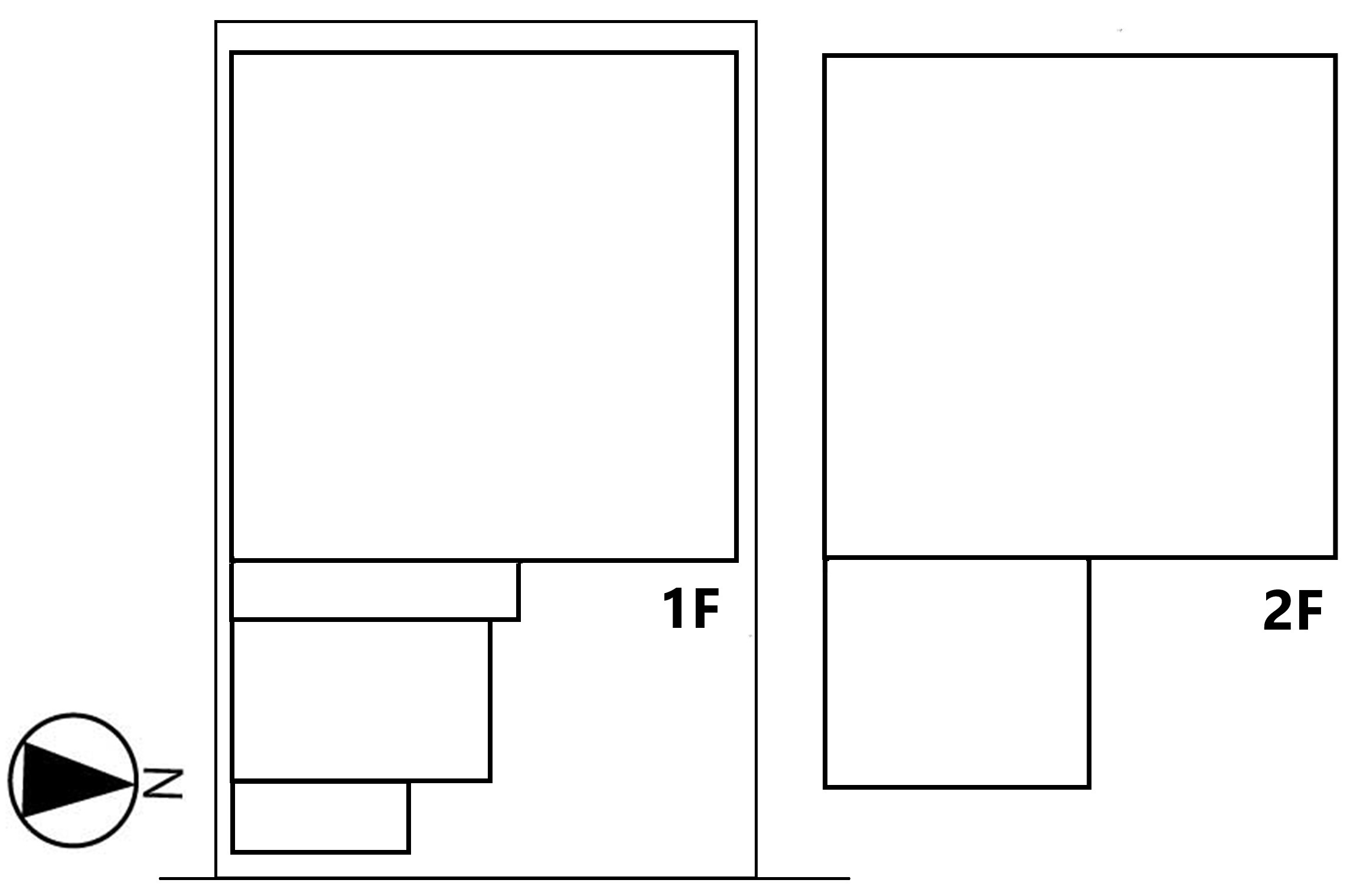
204.01坪(674.42㎡)
所在地
京都府京都市南区吉祥院這登中町
築年
1935年1月(築91年)
駐車
-
交通

東海道本線西大路」駅 徒歩17分

約130坪の2階建てシャッター付き工場◆即引渡し可能◆南区吉祥院這登中町の基本情報

物件名
約130坪の2階建てシャッター付き工場◆即引渡し可能◆南区吉祥院這登中町
価格
1億6,000万円
築年月
1935年1月(築91年)
総戸数
1戸
所在地
京都府京都市南区吉祥院這登中町
交通

東海道本線西大路」駅 徒歩17分

約130坪の2階建てシャッター付き工場◆即引渡し可能◆南区吉祥院這登中町の詳細情報

設備条件
設備(その他)
    -
駐車場/月額
-/-
土地権利
所有権
国土法届出
不要
用途地域
工業
戸数
1戸 / 1戸
管理形態
-
管理員の勤務形態
-
管理会社
-
取引態様
仲介
引渡し
即時
備考
■学区:吉祥院小学校(500m)・洛南中学校(1.1km)
■築年月不詳

約130坪の2階建てシャッター付き工場◆即引渡し可能◆南区吉祥院這登中町のコメント(おすすめポイント)

約130坪の2階建て工場☆
第二京阪道路「上鳥羽インター」まで車で約8分・名神高速道路「京都南インター」まで車で約10分&大阪や滋賀県までアクセス可能な便利な立地♪
スーパー・コンビニ・銀行・郵便局まで徒歩10分圏内◎

約130坪の2階建てシャッター付き工場◆即引渡し可能◆南区吉祥院這登中町で募集中の物件

  1. 204.01坪 (674.42㎡)

    16,000万円(78.43万円/坪)

周辺施設

  • ファミリーマート 吉祥院這登中町店の画像

    コンビニエンスストア

    ファミリーマート 吉祥院這登中町店

    7m(1分)

  • マツモト 洛南店の画像

    スーパー

    マツモト 洛南店

    450m(6分)

  • 京都銀行 吉祥院支店の画像

    銀行

    京都銀行 吉祥院支店

    450m(6分)

  • 吉祥院小学校の画像

    小学校

    吉祥院小学校

    500m(7分)

  • 京都吉祥院郵便局の画像

    郵便局

    京都吉祥院郵便局

    700m(9分)

  • 吉祥院保育所の画像

    保育園

    吉祥院保育所

    750m(10分)

  • イオン洛南ショッピングセンターの画像

    ショッピングセンター

    イオン洛南ショッピングセンター

    1000m(13分)

  • 洛南中学校の画像

    中学校

    洛南中学校

    1100m(14分)

  • ドラッグストアコスモス 祥栄店の画像

    ドラッグストア

    ドラッグストアコスモス 祥栄店

    1200m(15分)

約130坪の2階建てシャッター付き工場◆即引渡し可能◆南区吉祥院這登中町

お気軽にお問い合わせください

無料お問い合わせ

株式会社ハウスプロジェクト

0120-3355-39

AM9:00~PM7:30

(休:なし(年末年始を除く))